Te koop: woning Armand Meyswijk 34

Dit is 1 van de 6 woningen die we verkopen. De woning ligt in de Armand Meyswijk. 

De bedoeling is dat de woning een sociale invulling krijgt. Je kan daarvoor een projectvoorstel indienen.

Ligging

De woning ligt in de Armand Meyswijk.

Armand Meyswijk 34
3012 Wilsele
Bekijk op kaart
CaPaKey (perceelsnummer): 24126C0080/00L004

Dicht bij de woningen ligt een visvijver (’t Fort), een toegankelijk speelterrein en een skatepark.

De wijk is achterliggend ontsloten richting de Oudstrijderslaan en het Lijnloperspad via een pad langs woning nummer 16.

Over de woning

  • Het is een gesloten bebouwing met een tuin.
  • Het totale perceel heeft een kadastrale oppervlakte van 349 m².
  • De woning maakt deel uit van een reeks van 11 arbeiderswoningen in een doodlopende wijk. Het geheel van woningen dateert van rond 1914.

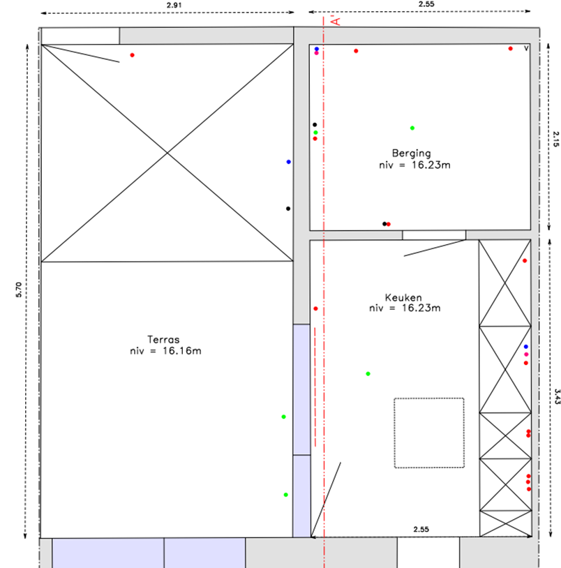
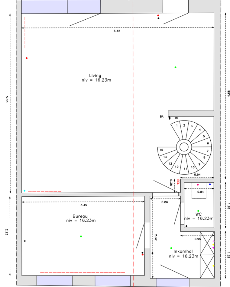
Oppervlakte en indeling

De woning heeft een brutovloeroppervlakte van 175 m². Dit is de indeling:

  • Gelijkvloers met een vloeroppervlakte van 81 m² (inkomhal, wc, bureauruimte, living, keuken met berging en terras)
  • Eerste verdieping met een vloeroppervlakte van 47 m² (3 slaapkamers en een badkamer)
  • Zolderverdieping met een vloeroppervlakte van 47 m²

Technische informatie

De woning dateert van rond 1914.

  • Ze heeft een hellend dak met kleidakpannen en een plat dak met roofing, dubbele beglazing in houten schrijnwerk, tegel-, laminaat- en tapijtvloeren.
  • De woning wordt verwarmd met een centrale gasverwarming.
  • De woning heeft een energieprestatiecertificaat met certificaatnummer 20250214-0003526170-RES-1 daterend van 14 februari 2025 (bijlage 3) en een energielabel E met een waarde van 463 kWh / m² jaar.
  • Het asbestinventarisattest van de woning met attestnummer 20250220-000055.000 uitgegeven op 20 februari 2025 (bijlage 4), verklaart de woning asbestveilig (maar niet asbestvrij) met twee zorgvuldig te beheren materialen.
  • De elektrische installatie is niet conform verklaard in het keuringsverslag met nummer 0862-250129-04 van 29 januari 2025 (bijlage 5), opgesteld door Normec BTV.
  • Er is geen stookolietank in of op het perceel.

Gebruik

  • De woning is verhuurd (bijlage 8). Deze overeenkomst dateert van 15 oktober 1982 en is ingegaan op 1 september 1982 voor onbepaalde duur.
  • De laatste huurprijs bedroeg € 540,93.

Oppervlakte

349 m².

Prijs

Je kan een bod uitbrengen van € 285.000 of hoger.

Woning bezoeken

Je kan de woning bezoeken, na afspraak. Bel of mail om een afspraak te maken:

AG Stadsontwikkeling Leuven - vastgoed

Hoe kan je een projectvoorstel indienen?

Lees hoe je een projectvoorstel indient

Meer info

Interesse?

Contacteer ons:

Marieke Valkeniers
Vastgoedjurist AG Stadsontwikkeling Leuven
Tel.016 27 28 90

Heb je een vraag?

Contacteer ons. We helpen je graag verder.

Bel ons

016 27 26 77

Mail ons

vastgoed@leuven.be
Je krijgt zo snel mogelijk een antwoord.
Iets fout of onduidelijk op deze pagina? Meld het ons.