Te koop: woning Armand Meyswijk 16

We verkopen een halfopen woning in een rustige wijk, op wandelafstand van speelterrein en skatepark ’t Fort. Deze karaktervolle arbeiderswoning heeft veel potentieel om naar eigen smaak te renoveren.

  • Aantal slaapkamers: 2
  • Bewoonbare oppervlakte: 127 m² bruto
  • Adres: Armand Meyswijk 16, 3012 Wilsele
  • EPC: F
  • Prijs: Vanaf € 210.000
  • Verkoop: Bieding onder gesloten omslag

Foto's

Ligging

De woning ligt in de Armand Meyswijk in Wilsele, een rustige, doodlopende wijk dicht bij:

Langs het huis loopt een wandelpad richting de Oudstrijderslaan en het Lijnloperspad.

Adres

Armand Meyswijk 16
3012 Wilsele
Bekijk op kaart
CaPaKey (perceelsnummer): 24126C0080/00E005

Oppervlakte

  • Oppervlakte perceel: 182 m²
  • Vloeroppervlakte woning (bruto): 127 m²

Beschrijving

De halfopen bebouwing met een tuin is onderdeel van 11 arbeiderswoningen in een wijk uit 1914.

Indeling

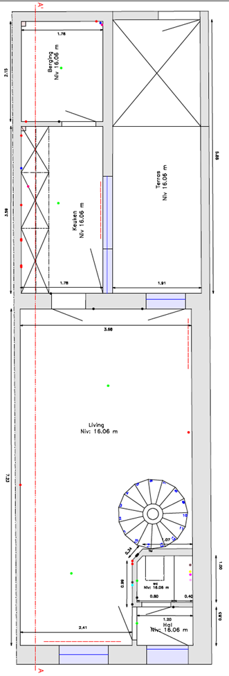
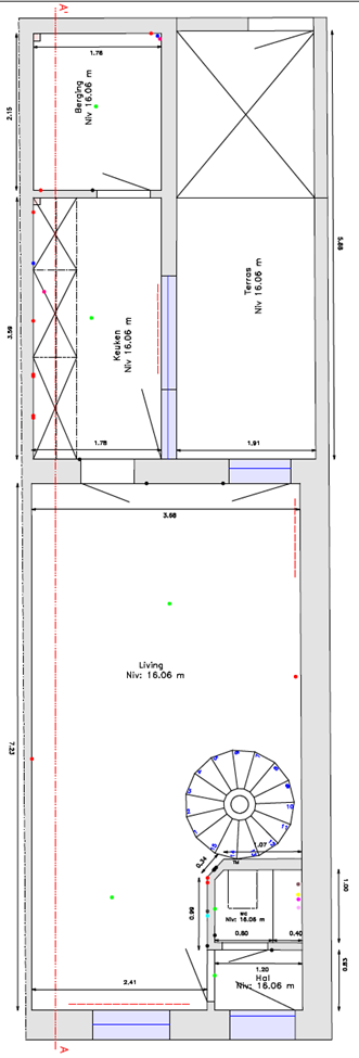
  • Gelijkvloerse verdieping: Living, keuken, berging en wc - 59 m²
  • Eerste verdieping: 2 slaapkamers en een badkamer - 34 m²
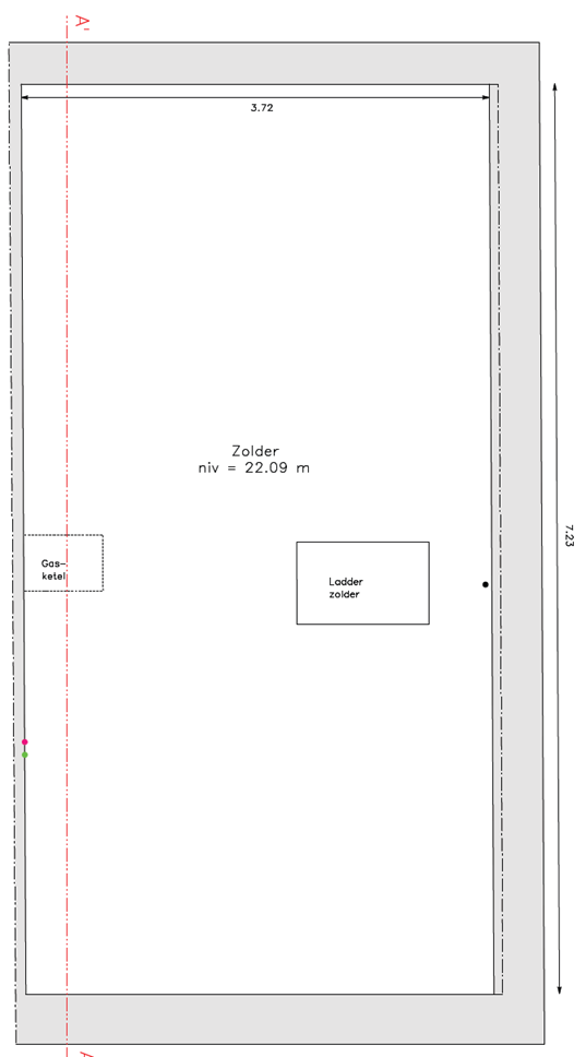
  • Zolderverdieping: 34 m²

Vergunningen en ruimtelijke ordening

  • Omgevingsvergunning voor stedenbouwkundige handelingen: Ja
  • Meest recente stedenbouwkundige bestemming:
    • Afbakeningslijn regionaalstedelijk gebied Leuven (Gewestelijk Ruimtelijk Uitvoeringsplan)
    • Gemengd openruimtegebied (Gewestelijk Ruimtelijk Uitvoeringsplan)
    • Bufferzones (Gewestplan)
  • Dagvaarding of rechterlijke herstelvordering: Nee
  • Bestuurlijke maatregel: Nee
  • Voorkooprecht: Nee
  • Verkavelingsvergunning: Nee
  • Watergevoelig gebied: Nee

Technische informatie

De woning dateert rond 1914.

Materialen

  • Hellend dak met kleidakpannen en plat dak met roofing
  • Dubbele beglazing in houten schrijnwerk
  • Keramische tegels en tapijt

Energie

  • Energielabel: F (595 kWh/m²/jaar)
  • Elektrische installatie: Niet conform
  • Verwarming: Centrale verwarming op gas
  • Stookolietank: Geen

Renovatieverplichting

Verplicht te renoveren naar energielabel D binnen 6 jaar na aankoop.

Lees meer over de renovatieverplichting bij Vlaanderen

Asbest

Zie asbestinventarisattest

Beschikbaarheid

De woning is momenteel niet bewoond.

Prijs en verkoop

Bieding

We verkopen de woning via bieding onder gesloten omslag.

  • Start bieding: Maandag 16 maart 2026
  • Einde bieding: Vrijdag 27 maart 2026 om 10 uur

Prijs

Bieden kan vanaf € 210.000.

Hoe bod indienen?

  • Dien een bod in met het biedingsformulier.
  • In de valorisatiebundel lees je meer over:
    • Hoe de verkoop verloopt
    • Hoe je correct een bod uitbrengt

Woning bezoeken

Je kan de woning bezoeken op deze momenten:

Zonder afspraak (vrij bezoekmoment)

  • Zaterdag 7 maart 2026, doorlopend van 14 tot 17 uur

Op afspraak

  • Donderdag 26 februari 2026, 16 uur tot 18 uur
  • Dinsdag 24 maart 2026, 14 uur tot 16 uur

Contacteer ons om een afspraak te maken:

AG Stadsontwikkeling Leuven - vastgoed

Meer info

Interesse?

Contacteer ons:

Marieke Valkeniers
Vastgoedjurist AG Stadsontwikkeling Leuven
Tel. 016 27 28 90

Waarom verkoopt AG Stadsontwikkeling Leuven deze woning?

We verkopen deze grond om de gebouwen en gronden in de stad optimaal te beheren en gebruiken. AG Stadsontwikkeling Leuven investeert de opbrengsten in nieuwe budgethuurwoningen.

Meer woningen

Heb je een vraag?

Contacteer ons. We helpen je graag verder.

Bel ons

016 27 26 77

Mail ons

vastgoed@leuven.be
Je krijgt zo snel mogelijk een antwoord.

Stuur een bericht

Iets fout of onduidelijk op deze pagina? Meld het ons.