Te koop: woning Dekenstraat 68

We verkopen een rijwoning met tuin in het centrum van Leuven. De woning ligt op wandelafstand van het bus- en treinstation, het Sint-Donatuspark en scholen. De woning heeft veel potentieel om te renoveren en in te richten zoals jij het wil.

  • Aantal slaapkamers: 2
  • Bewoonbare oppervlakte: 168 m²
  • Adres: Dekenstraat 68, 3000 Leuven
  • EPC: F
  • Prijs: Vanaf € 175.000
  • Verkoop: Bieding onder gesloten omslag

Foto

Ligging

De woning ligt in het centrum van Leuven, dicht bij:

  • Bus- en treinstation
  • Winkels en supermarkten
  • Sint-Donatuspark
  • Campussen van de universiteit en scholen
  • Cafés en restaurants

Adres

Dekenstraat 68
3000 Leuven
Bekijk op kaart
CaPaKey (perceelsnummer): 24502C0286/00F002

Oppervlakte en indeling

  • Het is een gesloten bebouwing.
  • De oppervlakte van het perceel is 153 m².
  • De vloeroppervlakte van de woning is 168 m².

Indeling

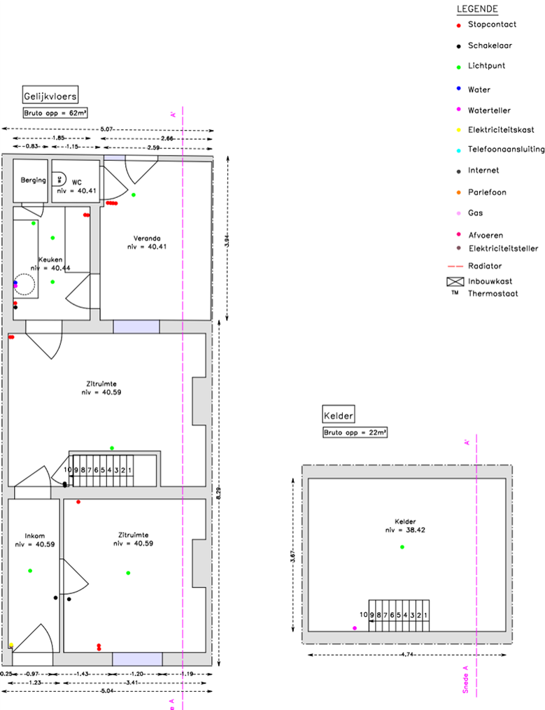
  • Kelder: 22 m²
  • Gelijkvloerse verdieping: Inkom, zitruimte, keuken, berging en wc - 62 m²
  • Eerste verdieping: 2 slaapkamers - 42 m²
  • Zolder: 42 m²

Technische info

De woning dateert vermoedelijk van rond 1900.

Constructie en materialen

  • Hellend dak met houten constructie
  • Houten schrijnwerk met enkel glas
  • Tegelvloer op de gelijkvloerse verdieping

Energie

  • Energielabel: F (774 kWh/m² jaar)
  • Elektrische installatie: Niet goedgekeurd
  • Verwarming: Gas
  • Stookolietank: Geen

Asbest

De woning is niet asbestvrij.

Renovatieplicht

Je moet de woning binnen 6 jaar na aankoop renoveren tot energielabel D.

Lees meer over de renovatieverplichting bij Vlaanderen

Vergunningen en ruimtelijke ordening

  • Omgevingsvergunning voor stedenbouwkundige handelingen: Ja
  • Stedenbouwkundige bestemming: Woongebied
  • Dagvaarding of rechterlijke herstelvordering: Nee
  • Bestuurlijke maatregel: Nee
  • Voorkooprecht: Nee
  • Verkavelingsvergunning: Nee
  • Watergevoelig gebied: Nee

Beschikbaarheid

De woning is momenteel niet bewoond.

Prijs en verkoop

We verkopen de woning via bieding onder gesloten omslag.

  • Start bieding: Maandag 23 maart 2026
  • Einde bieding: Vrijdag 3 april 2026 om 10 uur

Prijs

Bieden kan vanaf € 175.000.

Hoe een bod indienen?

  • Dien een bod in met het biedingsformulier.
  • In de valorisatiebundel lees je meer over:
    • Hoe de verkoop verloopt
    • Hoe je correct een bod uitbrengt
Downloads

Woning bezoeken

Je kan de woning bezoeken op afspraak op deze momenten:

  • Woensdag 18, 25 maart en 1 april 2026, 14 tot 16 uur
  • Vrijdag 20 en 27 maart, 14 tot 15 uur

Contacteer ons om een afspraak te maken:

AG Stadsontwikkeling Leuven - vastgoed

Meer info

Heb je interesse of een vraag?

Contacteer ons, we helpen je graag verder.

Wim Jaubin
Vastgoedbeheerder AG Stadsontwikkeling Leuven
Tel. 0499 058 509
Stadskantoor - AGSL

AG Stadsontwikkeling Leuven

Professor Van Overstraetenplein 1
3000 Leuven
Bekijk op kaart

Waarom verkopen we deze woning?

We verkopen deze woning om de gebouwen en gronden in de stad optimaal te beheren en gebruiken. AG Stadsontwikkeling Leuven investeert de opbrengsten in nieuwe budgethuurwoningen.

Iets fout of onduidelijk op deze pagina? Meld het ons.